Distiller Demister Pads are an essential component of distillation columns used to reduce the amount of entrained liquids and droplet entrainment in the filtration system.
Sizes and Materials
Distiller mesh demisters are available in a range of sizes, colors, materials, and shapes according to the application and the pressure drop desired in the system. The size also influences the contact surface area, efficiency, and overall performance of the pad. These pads typically range from 3/8" up to 48". The width can range from 12" up to 60" depending on the required surface area. Colors most offer standard grey, black, and white for easy system identification.
The materials used for distiller demister pads include metallic stainless steel, fiberglass, polypropylene, and other synthetic fibers. Each material has its own distinct characteristics such as flexibility, chemical resistance, durability, and permeability. The length of the pad can vary depending on the application and desired shape. It is important to have an even distribution of mesh fibers throughout the entire length of the pad, which provides uniformity and better performance when compared to pads with irregular fiber distribution.
Common shapes of distiller demister pads we supply are rectangular and circular. The rectangular demister pads are more efficient due to its larger surface area while the circular ones provide a more consistent performance. The thickness of the pad also varies depending on the application. For effective performance, it is important that the pad is thick enough to create an even distribution of the droplets throughout the entire surface of the pad.
316L Stainless Steel Distillers Demister Pads are made from high-grade stainless steel and designed to be used in distillation towers for the removal of steam and mist. This ss distiller demister pad features corrosion-resistance, heat-resistance, and chemical-resistance, and provide excellent filtration performance for condensate removal.
Demister Pad ( 1000x 573x100mm) With Frame Construction: Reverse Fold In One Piece With Ends Edged.
Wire : AISI 316-32swg.
Density : 192.5 Kg/M3. With Top And Bottom Ladder Type Support Grids Made From 25mm X3mm Thick &Rod 6mm Dia.
Material: A.I.S.I 316l Stainless Steel
Demister Pad (1147 X570x100 Mm) With Frame Construction : Reverse Fold In One Piece With Ends Edged.
Wire : AISI 316-32swg.
Density : 192.5 Kg/M3. With Top And Bottom Ladder Type Support Grids Made From 25mm X3mmthick &Rod 6mm Dia.
Material:A.I.S.I 316l Stainless Steel
Demister Pad ( 1000x 573x100mm/Cutout) Single Cut With Frame Construction : Reverse Fold In One Piece With Ends Edged.
Wire : AISI 316-32swg.
Density : 192.5 Kg/M3. With Top And Bottom Ladder Type Support Grids Made From 25mm X3mm Thick &Rod 6mm Dia.
Material: A.I.S.I 316l Stainless Steel
Demister Pad ( 1137x564x100mm/Cutout) Single Cut With Frame Construction : Reverse Fold In One Piece With Ends Edged.
Wire : AISI316-32swg.
Density : 192.5 Kg/M3. With Top And Bottom Ladder Type Support Grids Made From 25mm X3mmthick &Rod 6mm Dia.
Material: A.I.S.I 316l Stainless Steel


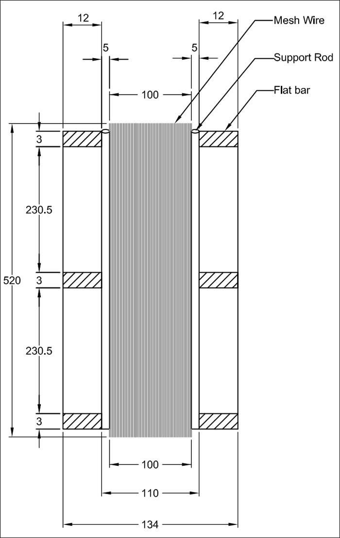
TECHNICAL DETAILS
Demister Pad
1. Thickness : 100 mm
2. Mesh Configuration : Close Knitted
3. Mesh Wire Size Range : 0.22 - 0.28mm
4. Density,kg/m : 190 ; Free Volume , % : 97.5
5. Material: BS 970 : 316 , S31 or S33 Stainless Steel
Grid Frame
(2)Flat Bar: 12 mm wide 3 mm thick
(3)Support Rod : 5 mm dia
(4)Materials : BS 970 : 316 : S31 or S33
(5)Assembly : Roda welded to Frame to
Frame as per the drawing.
NOTE:
(1) All Dimensions are in millimetres Unless Otherwise Stated

Demister fastening pipe ASTM A312 TP 316L

Vapour barrier plate
Distillate tray
Mesh demisters spacer

Stage side plate ASTM 285 Gr. C
top hold-down grid
bottom support grid
rods 6 dia
knitted fine wire mesh
| Number | Single mesh demister pad length x width mm x mm |
No of pads in each stage | Nominal mesh demisters dimensions in the stage ( No. x length x width) mm x mm | Total mesh demisters area in each stage m2 | Operating pressure bar ads. |
Operating steam velocity m/sec |
| 1 | 458 x 400 | 2 x 21 | 2 x 9618 x 400 | 7.6944 | 1.0602 | 3.65 |
| 2 | 458 x 400 | 2 x 22 | 2 x 10076 x 400 | 8.0605 | .9374 | 3.87 |
| 3 | 458 x 400 | 2 x 24 | 2 x 10992 x 400 | 8.7936 | .8271 | 3.95 |
| 4 | 458 x 400 | 2 x 26 | 2 x 11908 x 400 | 9.5264 | .7250 | 4.19 |
| 5 | 458 x 400 | 2 x 28 | 2 x 12824 x 400 | 10.2592 | .6332 | 4.37 |
| 6 | 458 x 500 | 2 x 24 | 2 x 10992 x 500 | 10.992 | .5518 | 4.58 |
| 7 | 458 x 500 | 2 x 26 | 2 x 11908 x 500 | 11.908 | .4794 | 4.76 |
| 8 | 458 x 500 | 2 x 28 | 2 x 12824 x 500 | 12.824 | .4153 | 5.00 |
| 9 | 458 x 675 | 2 x 23 | 2 x 10534 x 675 | 14.2209 | .3580 | 5.11 |
| 10 | 458 x 675 | 2 x 26 | 2 x 11908 x 675 | 16.0758 | .3083 | 5.13 |
| 11 | 458 x 675 | 2 x 28 | 2 x 12824 x 675 | 17.3124 | .2642 | 5.14 |
| 12 | 458 x 750 | 2 x 28 | 2 x 12824 x 750 | 19.236 | .2263 | 5.58 |
| 13 | 458 x 825 | 2 x 28 | 2 x 12824 x 825 | 21.1596 | .1931 | 5.80 |
| 14 | 458 x 900 | 2 x 28 | 2 x 12824 x 900 | 23.0832 | .1642 | 6.10 |
| 15 | 458 x 825 | 2 x 20 | 2 x 9160 x 825 | 15.114 | .1490 | 5.79 |
| 16 | 458 x 825 | 2 x 25 | 2 x 11450 x 825 | 18.8925 | .1324 | 5.44 |
| 17 | 458 x 900 | 2 x 27 | 2 x 12366 x 950 | 23.4954 | .1138 | 7.36 |
Mesh demisters
Nominal free volume: approx. 97.5% of total volume
Nominal density.: 12
Diameter of mesh wire: 0.279 mm
Materials
Mesh wire: ASTM 478 TP. 316L
Electrically welded bottom and top grid: ASTM 478 TP. 316L
Spacer bars: ASTM 478 TP. 316L
Tie wire: ASTM 478 tp. 316L
Demisters fastening pipe: ASTM 312 TP. 316L
Demisters fastening pipe support souare bars: ASTM 276 TP. 316L
Notes:
1. Mesh demister pad border no encased
2. Carbon steel plates with carbon content restricted to 0.25% max.